捷克论坛-捷克论坛官方最新直通站

石景山区首钢今时宾馆改建保租房项目规划设计方案专家评审意见

捷克论坛-捷克论坛官方最新直通站

我在听,请说话(10s)
抱歉,没听清,请再说一遍吧
智能问答
您所在位置:主页  > 住房保障 > 项目建设 > 设计方案公示

石景山区首钢今时宾馆改建保租房项目规划设计方案专家评审意见

信息来源:捷克论坛 发布时间:2025年03月28日

  石景山区首钢今时宾馆改建保租房项目规划设计方案专家评审意见如下:

  一、进一步梳理规划功能及消防问题。

  二、补充结构的现状图纸、节点和结构改造实施方案专业评估论证意见。

  三、优化走道内消火栓位置,满足疏散宽度要求。

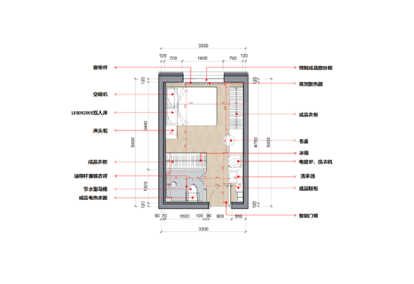
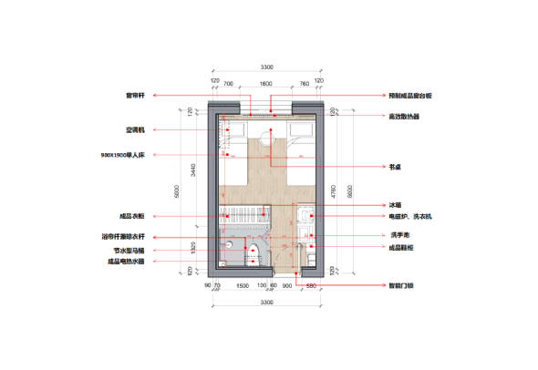
  四、优化户型内功能,满足使用要求,改进装饰风格。

  五、结合建筑现状,考虑装配式内装技术的应用。

  专家有关建议如下:

  六、专家意见一

  (一)规划

  1.室外空间要梳理,有点乱。

  2.北楼与西楼的楼梯需处理。

  (二)建筑

  1.双人间卫生间的热水器位置不好;衣柜与走道过窄,可改小;户门应1000mm为好。

  2.现装修方案要考虑现状加固的条件。

  3.走道消火栓位置建议调整。

  4.立面门头风格要简约为好。

  5.细节上要优化,多考虑些现状。

  七、专家意见二

  (一)院内功能较多,应根据交通流线优化出入口、门厅位置,并明确管理边界。

  (二)建筑内的公共活动室布置分散,应根据居住人群的活动规律相对集中布置,并结合公共门厅进行整合。

  (三)优化消火栓位置,避免影响疏散宽度,优化屋面排烟风机防护罩设计,可采用装配式一体化风机房。

  (四)户内厨卫布置不合理。应优化无障碍卫生间家具选型。

  (五)建议根据目标客户的特点,调整装修风格及色彩。

  八、专家意见三

  (一)优化出入口、辅助用房布置,满足居住人群和运营管理要求。

  (二)优化室外非机动车停车及室外活动场地设计。

  (三)优化细化居室设计,尽量避免双开间套间。居室内增加晾衣杆。

  (四)优化立面设计,统一风格及手法。

  九、专家意见四

  (一)补充加固后现况结构平面、剖面、节点图纸,户型图建议按现况结构墙实际厚度布置。

  (二)细化楼板替换、电梯井及其基础节点方案。补充结构实施方案。

  (三)建议项目实施前,补充结构实施方案论证评估,保证实施过程安全。

  十、专家意见五

  (一)优化室内空间布局方案,提高紧凑空间使用效率,完善使用功能。

  (二)轻钢龙骨隔墙贴砖做法,长期使用容易产生剥落、开裂等现象,建议采用稳妥的技术方案。

  (三)复核卫生间玻璃隔墙与起居室地面收口做法,应保证技术应用合理、可行、合规。

  (四)深化、补充家具、色彩、照明设计。

  (五)建议利用现有条件适当采用装配式技术。

【大 小】 打印】 【关闭