捷克论坛-捷克论坛官方最新直通站

大兴区旧宫镇YZ00-0902-0340、6002、6003(原DX05-0102-0340、6002、6003)F81集体产业用地地块项目规划设计方案专家评审意见

捷克论坛-捷克论坛官方最新直通站

我在听,请说话(10s)
抱歉,没听清,请再说一遍吧
智能问答
您所在位置:主页  > 住房保障 > 项目建设 > 设计方案公示

大兴区旧宫镇YZ00-0902-0340、6002、6003(原DX05-0102-0340、6002、6003)F81集体产业用地地块项目规划设计方案专家评审意见

信息来源:捷克论坛 发布时间:2025年03月28日

  大兴区旧宫镇YZ00-0902-0340、6002、6003(原DX05-0102-0340、6002、6003)F81集体产业用地地块项目规划设计方案专家评审意见如下:

  一、统筹协调三个地块配套用房的服务半径,避免未设置配套用房地块出现服务盲区。优化0340地块出入口,建议不超过两个。

  二、优化D户型功能空间匹配关系;增加E户型卫生间面积,调整布局。

  三、进一步优化完善全装修设计。

  专家有关建议如下:

  四、专家意见一

  (一)统筹三个地块的配套用房服务半径,0340地块出入口太多,建议40-3#楼向东移,将西山墙单车道变为双车道,面向永慕东街的出入口作为备用车道出入口,封闭东向住区出入口。

  (二)重新优化体育活动场地,尽量避免噪声影响居室。

  (三)D户型优化南向卧室旁边的储藏间与电梯间的隔音处理。细化卫生间、厨房设计。

  (四)112平方米户型优化卫生间的马桶布置,建议增加卫生间的面积。

  五、专家意见二

  (一)建议电动自行车停车位不要设在地下,如不可避免,不要紧邻图书馆和健身房。

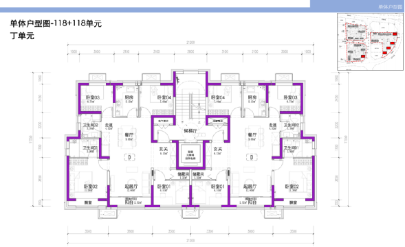
  (二)丁单元D户型起居厅有效墙面太短,餐厅面积过大。

  (三)丁单元D户型电梯做好隔音和减震。

  (四)丙单元E户型卫生间01内部空间逼仄。

  (五)丁单元首层入口门厅适度放大。

  六、专家意见三

  (一)方案资料比较齐全,深度复合评审要求。

  (二)优化0340地块出入口数量。

  (三)优化 D户型厨房设计,现设计冰箱空间过于局促,将冰箱从厨房移到餐厅,扩大冰箱尺寸。

  (四)调整 D户型入户空间设计,合理匹配玄关、起居厅和入口处次卧室面积关系。建议向上延长次卧和起居厅之间墙,合理围合起居空间,同时将临近入口处次卧室门向北推,将储藏室纳入次卧室。

  (五)重新调整 E户型设计,增加卫生间面积,合理控制餐厅和走道面积。

  七、专家意见四

  (一)完善立面技术实施方案,飘窗凸出宽度应满足节能规范要求。立面凸出线条同结构体应有可靠连接。

  (二)补充凸窗外墙构件预制方案,丁单元凸窗墙预制方案,补充预制框架连接节点技术方案,D户型飘窗同空调板空间关系不成立,建议调整。

  八、专家意见五

  (一)调整套内平面布局,优化各功能空间组织方式,斟酌各空间面积比例、门的开启位置。

  (二)补充内隔墙材料和做法。

  (三)补充完善卫生间同层排水管线布置方案、地漏选型、防水系统技术方案。

  (四)重新考虑卫生间布置方案,如:E户型两个卫生间平面,卫生间内各功能区尺寸应满足使用需求。

  (五)补充采暖、集分水器布置方案,补充厨房架空地面与室内填充地面接口做法,管线穿越方式。

  (六)深化全装修设计方案,适当提高内装装配率。

【大 小】 打印】 【关闭