捷克论坛-捷克论坛官方最新直通站

顺义区平各庄(旧村改造)SY00-0005-6049(08地块)6053(12地块)居住用地公租房项目规划设计方案专家评审意见

捷克论坛-捷克论坛官方最新直通站

我在听,请说话(10s)
抱歉,没听清,请再说一遍吧
智能问答
您所在位置:主页  > 住房保障 > 项目建设 > 设计方案公示

顺义区平各庄(旧村改造)SY00-0005-6049(08地块)6053(12地块)居住用地公租房项目规划设计方案专家评审意见

信息来源:捷克论坛 发布时间:2024年01月25日

  顺义区平各庄(旧村改造)SY00-0005-6049(08地块)6053(12地块)居住用地公租房项目规划设计方案专家评审意见如下:

  一、完善配套公建与居住的功能分区关系;地下停车库要细分配套公建和居住分区,避免相互干扰。

  二、优化户型空间布局、家具布置及管井设置。

  三、完善深化设计,满足纵肋剪力墙结构构件制作与施工要求。

  四、深化全装修一体化设计,优化功能空间家具设备布置。

  专家有关建议如下:

  五、专家意见一

  (一)总平面图应统筹处理公建与住宅的关系,尤其是公建中旅馆的设置是否合理。地下车库应明确公建与住宅停车的分区,南向地块北地库车道应设置双车道。保证地下车位无障碍到达家门口。地上活动场地应避免与住宅过近和近距离长向设置。绿化设计应细化,协调地面电动单车停放,并合理结合慢行交通设置每个组团的停车棚。

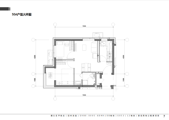
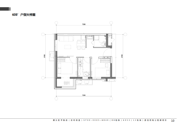
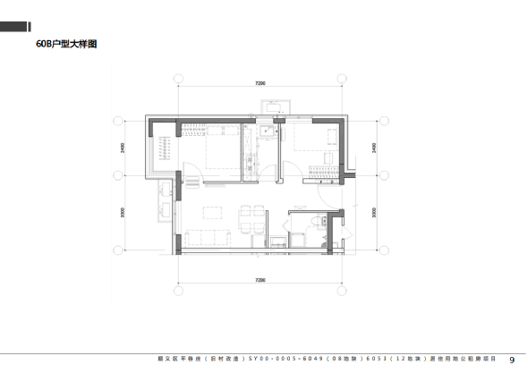
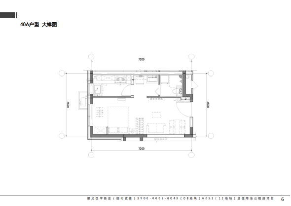
  (二)优化每套的管井尺寸,减少面积保障户内使用。40A户型减少阳台面积,合理增加厨房空间。50A户型建议调整小卧室门位置,形成完整厅的墙面,优化家具布置,增加阳台门连窗。60B、60B’户型多方考虑卧室家具布置,增加阳台门连窗。南向入口楼应重新考虑入口,加强利用率。增加立体储藏空间。

  (三)进一步丰富优化立面。

  六、专家意见二

  (一)电动自行车全部设置在地面,数量较大对整体园区的品质影响较大,建议优化。

  (二)复核日照分析,补充东西立面分析图。

  (三)消防车道与住宅之间设置自行车坡道,对消防救援的影响需要满足规范要求。

  (四)40A户型的厨房的“洗切烧”的“切”的使用功能的宽度较小,建议调整。

  (五)部分户型的阳台补充晾衣杆、洗衣机排水立管及地漏。

  (六)卫生间门洞M0721的净宽偏小,建议调整。户门的高度建议调整,满足新的通用规范的要求。

  (七)复核50A户型阳台的洗衣机的高度与窗户窗台的高度是否冲突,同时优化立管位置,不要和窗户冲突。

  (八)完善预制楼板全能板的隔声,满足绿色二星规范。

  (九)室内主要空气污染物浓度降低比例20%,应满足二星绿色建筑规范要求。

  (十)完善公建外墙节点大样。

  七、专家意见三

  1.优化地下车库布局,注意住宅停车与增配商业停车的分区管理。同时,住宅车位的回家流线应重视均好性和人人为本的设计原则。

  2.南侧地块的居住区物理分隔应重视均好性,尽量多满足居住区的活动场地及绿地要求。

  3.规划中要充分考虑地面充电非机动车位的使用便捷性,减小后期管理难度。

  (二)户型设计及立面设计方面

  1.50A户型优化冰箱位,适当增加储藏空间。

  2.60B和60B’户型建议优化干湿分离区域和冰箱位。

  3.外立面适当调整优化空调机位,充分考虑室外机安装后的立面效果。

  八、专家意见四

  (一)共性问题

  1.功能空间家具布置应化,保证各户型标准一致。

  2.厨卫空间设备间距应满足要求,预留预埋应一体化考虑,特别是水平风道与外墙、灶台与冰箱距离。

  3.细化装配式工艺工法与部品设计选型,补充详图。

  4.卫生间门对客餐厅建议优化。

  (二)户型

  1.40A户型,优化床与窗距离,保证窗帘设置。

  2.50A户型,建议优化洗衣机位置,尽量靠实墙;建议阳台设门联窗。

  3.60A户型,次卧收纳布置不合理;主卧应有衣柜;优化餐桌布置,保证就餐人数与户型匹配。

  4.60B户型,优化主卧家具布置,保证必要收纳空间。

  (三)详细设计

  1.厨房、卫生间墙板布置应与厨、洁具,顶、地分缝对齐。

  2.开关、插座布置原则应统一,并考虑分户时隔音处理。

  九、专家意见五

  (一)完善结构与构件深化设计,满足纵肋叠合剪力墙构件生产、制作与吊装、安装施工的具体要求。

  (二)细化结构装修一体板的构造设计,提出安装施工偏差控制要求。

  (三)完善装配式结构安装施工外防护安全架体相关技术要求

【大 小】 打印】 【关闭