捷克论坛-捷克论坛官方最新直通站

大兴区瀛海镇区级统筹集建地YZ00-0803-2029、2031地块F81集体产业用地项目规划设计方案专家评审意见

捷克论坛-捷克论坛官方最新直通站

我在听,请说话(10s)
抱歉,没听清,请再说一遍吧
智能问答
您所在位置:主页  > 住房保障 > 项目建设 > 设计方案公示

大兴区瀛海镇区级统筹集建地YZ00-0803-2029、2031地块F81集体产业用地项目规划设计方案专家评审意见

信息来源:捷克论坛 发布时间:2024年01月25日

  大兴区瀛海镇区级统筹集建地YZ00-0803-2029、2031地块F81集体产业用地项目规划设计方案专家评审意见如下:

  一、调整垃圾站点、地下车库布局。优化消防环道布置,减少小区内硬质道路,提升绿地的完整性。

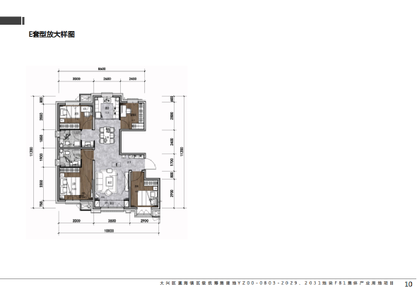
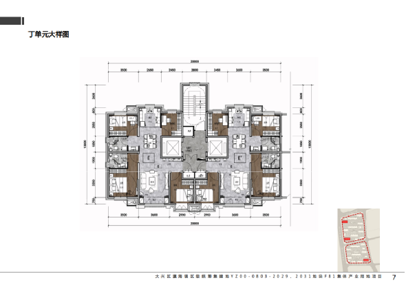
  二、优化单元及户型设计,满足相关规范要求。

  三、进一步优化结构方案;补充完善装配率计算过程及实施方案。

  四、深化装修图纸深度,细化集成厨房及公区的装修做法。

  专家有关建议如下:

  五、专家意见一

  (一)调整垃圾站点方案,进一步完善入口处的居住环境。优化消防环路的设置,减少小区交通性硬质道路,提升绿地完整性。

  (二)细化地下车库布局,提升经济性和合理性。

  (三)其他单体及相关意见同YZ00-0803-2006地块的评审个人意见。

  六、专家意见二

  (一)两个卫生间共用竖向排气道的户型,应落实产品选型和预留墙洞,务必设置逆止阀。

  (二)凸窗构造应与空调机隔板协调处理,保证与建筑立面一致。

  (三)阳台应与室内明确分隔,阳台栏板应按规范设置安全高度。

  (四)同层排水措施应与地暖构造协调处理。

  七、专家意见三

  (一)规划层面

  1.优化垃圾站点布局,尽量减少对住宅的不利影响。垃圾站内部布局建议结合未来使用工艺深化。

  2.地下车库布局优化,结合结构施工、绿地率计算等因素,尽量利用停车效率较高的部分。

  3.变电室及小配套等尽量统一布置,提高效率。

  (二)户型设计

  1.甲单元卫生间优化,保证主客卫使用的功能性和适应性。

  2.细化飘窗节点做法,确保符合规范并使用合理。

  3.其余单体意见参照YZ00-0803-2006地块会议的意见修改。

  八、专家意见四

  (一)装配式建筑政策执行《北京市人民政府办公厅关于进一步发展装配式建筑的实施意见》(京政办发〔2022〕16号)。

  (二)进一步调整结构方案,采用大开间,加强结构安全性,避免梁搭梁,补充结构性能指标。

  (三)外墙采用全装配方案,实现一体化目标,结构连接满足规范要求。

  (四)优化调整装配方案,加强模数化设计,连接错开受力较大区域。

  (五)配套公建预制柱补充节点,竖向采用全预制。

  (六)跨度较大叠合适当增加板厚,补充外墙防水做法。

  (七)装配率计算应明确各楼栋计算过程、工程做法、实施方案,并满足相关政策法规、规范标准要求。

  九、专家意见五

  (一)补充厨房地面、地暖做法,墙面材料及做法,核准集成吊顶产品规格。

  (二)补充卫生间同层排水管线组织方案,核准地漏的位置和数量,复核卫生间供暖方式和构造做法。

  (三)补充卫生间防水做法。

  (四)优化卫生间空间布局,控制淋浴区挡水地坎的高度 (或去掉),方便使用。

  (五)建议外置浴室柜增加收口挡墙,避免使用时磕碰。

  (六)完善全装修方案设计。

【大 小】 打印】 【关闭