捷克论坛-捷克论坛官方最新直通站

大兴区瀛海镇区级统筹集建地YZ00-0803-2019、2057地块F81集体产业用地项目规划设计方案专家评审意见

捷克论坛-捷克论坛官方最新直通站

我在听,请说话(10s)
抱歉,没听清,请再说一遍吧
智能问答
您所在位置:主页  > 住房保障 > 项目建设 > 设计方案公示

大兴区瀛海镇区级统筹集建地YZ00-0803-2019、2057地块F81集体产业用地项目规划设计方案专家评审意见

信息来源:捷克论坛 发布时间:2024年01月25日

  大兴区瀛海镇区级统筹集建地YZ00-0803-2019、2057地块F81集体产业用地项目规划设计方案专家评审意见如下:

  一、建议与规划部门沟通,落实两地块中间街坊路、配套服务设施指标相关要求。

  二、应优化配套服务设施建筑设计的合理性。

  三、进一步优化户型空间布局。

  四、复核装配率计算,优化预制外墙布置。

  专家有关建议如下:

  五、专家意见一

  (一)请与规划部门明确街坊路的交通组织方式,建议两块用地地下车库联通,取消一个地下车库出入口。

  (二)复核配套公服面积,地下面积除“三馆”以外,不宜设置配套公建。

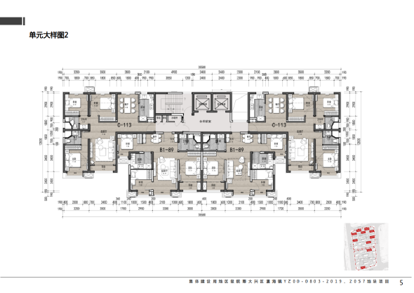
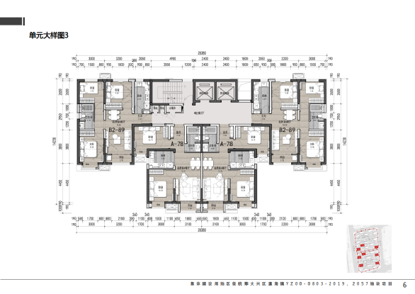
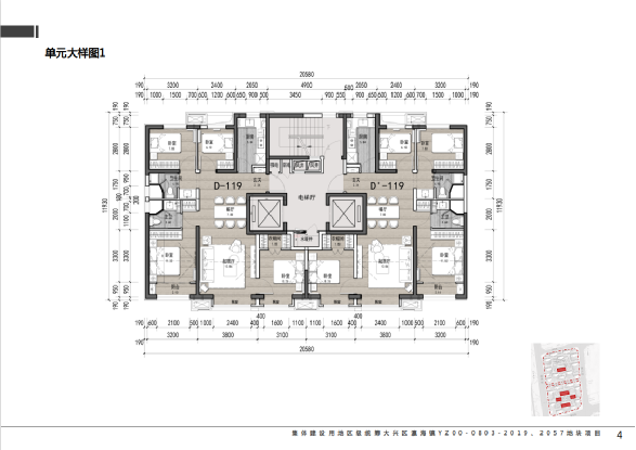
  (三)D-119户型建议取消储藏间开门,储藏间开向卧室;C-113户型,建议调整厨房门开启方向,改在入口走道,使餐厅形成个袋状空间;阳台上洗衣机建议移到洗手间。

  (四)配套公建的平面设计应与街坊路相互协调,避免下沉广场与人流、交通流线出现干扰。

  六、专家意见二

  (一)建议调整两组团中间道路及红线关系,进一步与规划部门协调道路级别及路宽。

  (二)应进一步核实两大组团的公建配套指标要求,是否增配B级配套指标(1300户)。

  (三)小区配套用房均在地下布置,并位于车库出入口附近,应优化设计。下沉广场交通组织应合理设计。

  (四)所有户型厨房与精装结合后,应保证“洗、切、烧”切菜台的有效宽度。

  七、专家意见三

  (一)规划层面

  1.地块中间街坊路需与政府明确宽度及产权,至少应为双向通行道路,合理组织地库出入口及相关交通组织。

  2.配套设施指标需与规划部门落实,应增加必要的生活配套设施(参照7号文要求)。

  (二)单体建筑

  1.D-119户型的南向次卧室布局优化,确保家具布置的合理性,有效利用北侧储藏空间。

  2.所有飘窗的防护栏杆应充分考虑安全性与美观性相结合,保证室内视线通透。

  八、专家意见四

  (一)本项目配套设施应实施装配置建筑,补充相关技术方案。

  (二)公区干式工法墙面应补充构造节点,并考虑其厚度对通道净宽的影响。

  (三)住宅楼南侧外墙应采用预制墙板,并复核外墙非现浇、非砌筑比例是否满足评价标准要求(需要注意非现浇、非砌筑比例应该是按照全楼栋外立面进行计算,并非标准层的计算比例)。

  (四)优化预制外墙布置,适当规并尺寸较小的预制墙板。

  (五)复核装配率计算方案,补充BIM工作计划及现有工作成果,控制后续BIM工作成果深度。

  九、专家意见五

  (一)核实装配率的计算,特别是集成式厨房、公区干式工法的计算。

  (二)细化完善集成式厨房、公区墙面地面的构造,明确主要材料和构造。

【大 小】 打印】 【关闭