捷克论坛-捷克论坛官方最新直通站

大兴区瀛海镇区级统筹集建地YZ00-0803-2006、2029、2031地块集体产业用地项目全装修设计方案专家评审意见回复

捷克论坛-捷克论坛官方最新直通站

我在听,请说话(10s)
抱歉,没听清,请再说一遍吧
智能问答
您所在位置:主页  > 住房保障 > 项目建设 > 设计方案公示

大兴区瀛海镇区级统筹集建地YZ00-0803-2006、2029、2031地块集体产业用地项目全装修设计方案专家评审意见回复

信息来源:捷克论坛 发布时间:2024年01月25日

  2023年10月20日,捷克论坛 会同市规划自然资源委组织召开了大兴区瀛海镇区级统筹集建地YZ00-0803-2006、2029、2031地块集体产业用地项目全装修设计方案专家评审会,专家组及相关部门实地查看了A、B、C三套户型装修样板间,听取了建设单位北京大兴发展集地开发有限公司和设计单位中外建工程设计与顾问有限公司的汇报,并就有关问题进行了质询,经讨论形成如下评审意见:

  1.原则通过全装修样板间评审。

  2.完善样板间施工图纸与样板间的一致性,并协调相关手续。

  意见落实情况:已调整施工图纸,与现场实际落成状态对接并保持一致。

  3.加强厨卫的一体化、精细化设计,保证各使用功能的舒适性。

  意见落实情况:

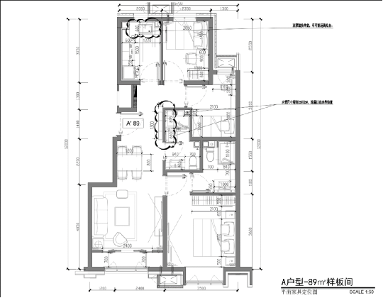
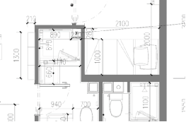
  A户型,厨房洗菜盆平移增大切菜案台空间、燃气管增加百叶维护、冰箱插座移到侧面;卫生间客卫优化调整水管外包尺寸到250mmX250mm,调整地漏露出洗衣机外,主卫调整淋浴间尺寸,让门打开与马桶不打架,调整毛巾架高度位置从原来1400mm高到1800mm高。

A户型厨房修改前展示

A户型厨房修改后展示

A户型客卫修改前展示

A户型客卫修改后展示

A户型主卫修改前展示

A户型主卫修改后展示

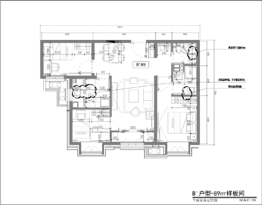
  B户型,厨房洗菜盆平移100mm增大切菜案台空间、燃

  气管增加百叶维护、冰箱插座移到侧面;卫生间优化淋浴间尺寸给洗衣机,调整毛巾架高度位置从原来1400mm高到1800mm高,调整厕纸盒位置全在后面到后侧方。

B户型厨房修改前展示

B户型厨房修改后展示

B户型客卫修改前展示

B户型客卫修改后展示

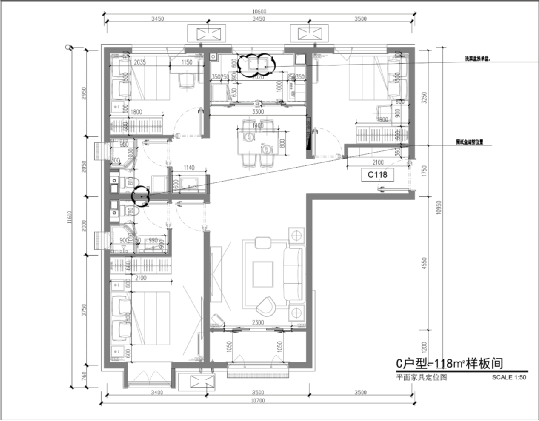
  C户型,厨房燃气管增加百叶维护、冰箱插座移到侧面;卫生间,调整毛巾架高度位置从原来1400mm高到1800mm高,调整厕纸盒位置全在后面到后侧方。

C户型厨房修改前展示

C户型厨房修改后展示

C户型客卫修改前展示

C户型客卫修改后展示

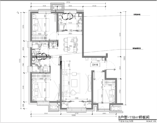
  D户型,厨房燃气管增加百叶维护、冰箱插座移到侧面;卫生间,调整毛巾架高度位置从原来1400mm高到1800mm高,调整厕纸盒位置全在后面到后侧方。

D户型厨房修改前展示

D户型厨房修改后展示

D户型客卫修改前毛巾架展示

D户型客卫修改后毛巾架展示

  4.补充装配式文本深度,以满足评审方案的要求。

  意见落实情况:

  补充装配式得分的修改说明如下:

  原评审方案装配率得分点为公共区的墙面为干式工法,厨房仅墙面和顶棚用干式做法。

  现方案因为首层走道做干式工法墙面导致消防疏散宽度不足,因此优化方案为将集成厨房的地面也采用干式工法作业,取消掉公区的干式工法墙面。

补充集成厨房干式做法与客厅餐厅湿作业区域衔接处节点

  5.其他意见和建议详见《专家评审意见表》。

  意见落实情况:依照意见完成《专家评审意见表》

  6.本项目应严格按照《关于在本市保障性住房中实施全装修成品交房有关意见的通知》(京建法〔2015〕17号)及《关于实施保障性住房全装修成品交房若干规定的通知》(京建法〔2015〕18号)文件要求实施全装修成品交房。

  意见落实情况:本项目严格执行上述要求。

  7.本项目应按照《关于细化保障性住房户门门槛部位尺寸要求的通知》(京建发〔2021〕956号)细化门槛部位尺寸。

  意见落实情况:本项目严格执行上述要求。

  门槛高度满足不超过35mm。

户门门槛现场照片

  8.建设单位应注意绿色环保材料的应用及交付前的相关检测实施。

  意见落实情况:本项目严格执行上述要求。

  9.经评审通过并审定的样板间(成品样板间)原则上不得变更全装修部品、材料,确因无法供货需要更换的,应遵循同等标准、同档品牌的替换原则。更换后,样板间不做调整,开发建设单位在样板间公示更换情况。区住房城乡建设委应做好监督指导工作。

  意见落实情况:本项目严格执行上述要求。

  (以下无正文)


  北京市保障性住房全装修设计方案审查

  专家评审意见表

  2023年10月20日

项目名称

大兴区瀛海镇区级统筹集建地YZ00-0803-2006、2029、2031地块集体产业用地项目

建设单位

北京大兴发展集地开发有限公司

设计单位

中外建工程设计与顾问有限公司

保障性住房审查意见

一、专家意见一

(一)完善样板间施工图纸与报批图纸的一致性,并协调相关手续。

意见落实情况:已调整施工图纸,与报批图纸一致。与现场实际落成状态对接一致。

A户型

A户型厨房洗菜盆平移100调整后展示

A户型客卫水管外包尺寸改为250*250调整后展示

A户型客卫地漏露出洗衣机外调整后展示

B户型

B户型厨房洗菜盆平移100调整展示

B户型客卫淋浴隔断缩小50调整

抬高毛巾架据地1800

B户型主卫淋浴隔断缩小20调整

抬高毛巾架据地1800

C户型

C户型厨房洗菜盆改为大单盆调整

C户型客卫毛巾架抬高至1800

手纸盒由马桶后移到侧边

C户型主卫毛巾架抬高至1800

手纸盒由马桶后移到侧边

D户型

D户型厨房洗菜盆改为大单盆调整

D户型客卫淋浴隔断缩小50

抬高毛巾架据地1800

D户型主卫淋浴隔断缩小20

抬高毛巾架据地1800

(二)厨房协调“洗、切、烧”尤其是“切”空间的尺寸。落实燃气管相关通风要求。卫生间应增加干区的毛巾架,调整洗衣机与地漏冲突的位置,优化马桶的纸巾盒位置、毛巾架高度的关系。调整冰箱插座的位置。

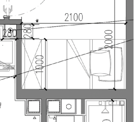
意见落实情况:A户型的厨房台面设计,现在灶台右侧空间宽度满足600mm,现修改将菜盆向右侧平移100mm,继续增大左侧案台切菜空间。B户型厨房台面设计,平移洗菜盆100mm,尽量远离灶台,使开窗与龙头错开,并提供更大的切菜空间,燃气管增加百叶。C户型厨房宽敞,洗菜盆右侧与灶具之间已经满足600mm切菜空间,同时将左侧空间预留出来作为面板、置物等多功能使用。D户型厨房宽度足够,洗菜盆右侧与灶具之间满足600mm切菜空间。左侧空间预留出来作为面板、置物等多功能使用。已经调整洗衣机与地漏冲突的位置,地漏紧贴淋浴间。

D户型厨房洗菜盆改为大单盆

所有户型的卫生间,优化马桶的纸巾盒位置,因为卫生间的空间局促,马桶两侧的空间并不十分充裕。因此厕纸盒优化布置在斜后方侧面或后面。毛巾架高度全部调到1800mm高,满足人使用舒适要求。

调整冰箱插座的位置。插座全部调整在冰箱侧面后面墙壁上,距离地面1200mm,与其他插座持平。如图所示:

C户型厨房冰箱插座调整冰箱侧面据地1200

(三)A户型减小客卫生间的管井尺寸,落实图纸与实际施工的一致性。调整玄关柜尺寸,凹槽处卧室应优化家具布置。B户型协调两个卫生间隔墙位置,优化客卫和主卫的使用。

意见落实情况:

A户型客卫管井尺寸已缩小到250X250mm,图纸与施工一致。如图所示:

A户型客卫管井改为250x250

A户型区域平面

A户型玄关柜,由于本身户型的走廊局促,玄关柜加厚则影响走道宽度不足1米。根据意见优化了柜体设计,将玄关柜的侧挂柜调整尺度满足人挂雨伞和临时物件的置物柜。鞋柜柜体优化设计成翻斗鞋柜,满足放鞋需求。

A户型玄关柜立面展示

A户型玄关鞋柜展示

A户型凹槽处客卧室本身空间紧凑,家具优化摆放。衣柜设计成吊柜,满足使用的前提,节省了占地空间。

A户型客卧衣柜改为吊柜

A户型客卧衣柜调整平面

B户型,卫生间的空间优化处理,将客卫的淋浴间的下沿和玻璃隔断缩减尺寸50mm,让洗衣机处更加宽敞,地漏布置在洗衣机斜后方,满足使用。主卫调整淋浴间门的位置和淋浴间尺寸缩小20mm,让门打开不与马桶打架。

(四)完善修改后的文本深度和要求。

意见落实情况:已修改文本图纸与现场实际一致。深化图纸内容。

(五)落实公共区域装修深度。

意见落实情况:公共区已补充装修深度内容,电梯厅的墙砖、地砖。电梯门与防火疏散门的布置安排已完成,依照公共区的实际交付标准装修完成。如图所示:

公共区域补充消火栓、布置电梯及疏散门、完善电梯厅墙砖地砖

二、专家意见二

(一)优化卫生间的布局,使洗衣机的安置空间方便使用。

意见落实情况:

A户型客卫管井尺寸已缩小到250X250mm。客卫开门门后布置洗衣机空间,留足地漏位置。B户型客卫的空间优化处理,将客卫的淋浴间的下沿和玻璃隔断缩减尺寸50mm,让洗衣机处更加宽敞,地漏布置在洗衣机斜后方,满足使用。CDE户型为大户型,卫生间空间满足洗衣机使用要求。

(二)89㎡户型,复核卫生间淋浴门开启后是否与洗衣机、洗面台面打架。

意见落实情况:经过优化,调整卫生间门尺寸,卫生间门和淋浴门开启不与洗衣机、洗面台打架。A户型客卫门做限位设计,保证门后洗衣机的使用。B户型的主卫因空间要求,保证淋浴门外开启满足人正常使用进入。

(三)阳台门是透明的,注意标识提醒用户不要撞上。

意见落实情况:已经贴标识处理。如图所示:

(四)厨房地面为干式地暖,其它区域为湿式地暖,细化完善连接构造。(与原评审方案装配率得分点不同,请补充说明)

意见落实情况:原评审方案装配率得分点为公共区的墙面为干式工法,厨房仅墙面和顶棚用干式做法。现方案因为首层走道做干式工法墙面导致消防疏散宽度不足,因此优化方案为将集成厨房的地面也采用干式工法作业,取消掉公区的干式工法墙面。

三、专家意见三

(一)舒适性问题:优化样板间卫生间布置,如淋浴间开间开门碰撞问题;手纸盒拿取不便问题;洗衣机压地漏问题;毛巾杆高度不舒适问题。

意见落实情况:卫生间布局已合理优化。A户型淋浴间开门碰撞问题通过缩减水管尺寸到250mmX250mm,满足开门要求。手纸盒已优化布置到马桶的侧后方或后方。A户型客卫地漏挪位置到紧邻淋浴间处,洗衣机与地漏尽量挪开。所有户型,卫生间毛巾架高度调到距地面1.8米位置,满足人坐落后的舒适要求。

(二)一致性问题:晾衣杆、开关插座、手纸盒的布置应与设计图纸保持一致。

意见落实情况:晾衣杆、开关插座、手纸盒布置已调整现场布置与图纸一致。

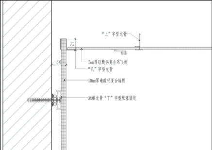
(三)工法样板间问题:完善工法样板间展示深度,如集成厨房的装配式做法,相关构造做法,使用注意事项应给予说明。

意见落实情况:已增加工法展示区相关内容,后续销售时会进一步给予说明。

(四)文本相关问题:补充集成厨房技术节点与相关图纸。

意见落实情况:文本内补充集成厨房技术节点和相关图纸。

集成厨房做法:

墙面:瓷砖,基层龙骨+瓷砖饰面层

地面:瓷砖,龙骨+地暖层+瓷砖

集成厨房与客餐厅区域衔接处节点做法

吊顶:铝扣板,铝扣板集成吊顶

【大 小】 打印】 【关闭