捷克论坛-捷克论坛官方最新直通站

昌平区昌平镇东环路136号(原六亭饭店)CP00-0205-0021地块项目共有产权住房全装修设计方案专家评审意见回复

捷克论坛-捷克论坛官方最新直通站

我在听,请说话(10s)
抱歉,没听清,请再说一遍吧
智能问答
您所在位置:主页  > 住房保障 > 项目建设 > 设计方案公示

昌平区昌平镇东环路136号(原六亭饭店)CP00-0205-0021地块项目共有产权住房全装修设计方案专家评审意见回复

信息来源:市住房和城乡建设委发布时间:2022年06月08日

  2022年4月20日,捷克论坛 会同市规划自然资源委组织召开了“昌平区昌平镇东环路136号(原六亭饭店)CP00-0205-0021地块R2二类居住用地”项目共有产权住房全装修设计方案专家评审会,专家组及相关部门实地查看了A、B、C2、D户型四套装修样板间,听取了建设单位北京诺德兴昌置业有限公司的汇报,并就有关问题进行了质询。经讨论形成如下评审意见:

  1.原则通过全装修试错样板间评审。

  2.复核消防设计,确保合规合理。结合外窗选型复核节能要求,规避后期使用结露风险。

  回复:

  (1)消防设计复核如下:设计过程中住宅室内消火栓严格按照《消防给水及消火栓系统技术规范》(GB50974-2014)的要求布置消火栓:

  (a)7.4.5条 消防电梯前室应设置室内消火栓,并应计入消火栓使用数量;

  (b)7.4.6条 室内消火栓的布置应满足同一平面有2支消防水枪的2股充实水柱同时到达任何部位的要求;

  (c)7.4.7-2条 住宅的室内消火栓宜设置在楼梯间及其休息平台;

  本项目目前住宅内消火栓分别设置在楼梯间和合用前室,消防设计均满足规范要求并已通过施工图审查。

  (2)节能要求上施工图设计严格按照北京市地方标准《居住建筑节能设计标准》(DB11/891-2020)进行节能设计,设计过程中进行了结露检查计算、耗热量指标、综合权衡等计算,且所有外墙保温保持一致,传热系数均为0.34满足规范不应大于0.35的要求,比如2#住宅楼防结露计算结果、外墙传热系数及节能各计算结果详见下表:

1

  3.提升样板间整体质量,包括部品选型、材质及施工工艺工法等。

  (1) 阳台门和厨房门的优化对比

  回复:厨房门考虑整体通透性,仍保留原造型,已严格控制五金件质量确保五金使用耐久性 ;已优化阳台门选型,阳台门增加横向支撑确保牢固; 89A 次卧室布局已优化,床和衣柜已进行对调;

2

3

  (2)飘窗窗台优化前后对比

  

  回复:清单与单方造价均已满足标准要求,106户型及89B户型飘窗窗台石已增加

4

  (3)厨房增加吊柜对比

  回复: 73户型增加吊柜包油烟机,89A户型增加吊柜包油烟机,所有户型燃气设备插座相应调整,调整方式如图所示;

5

  (4)洗手盆插座,排水管等优化

  回复:所有户型洗衣机地贴尺寸已统一为600*600mm,厨房及卫生间插座均改为防水插座,已安装到位,照明开关及插座位置进行统一优化到1300mm高度,已避免镜箱与开关冲突的问题。按要求设置了排水管。

6

  (5)淋浴区花洒优化

  回复:所有户型卫生间淋浴区域增加置物架,置物架位置如图所示,安装高度均为1500高。为使用方便调整为移动花洒支架。

7

  (6)马桶侧面散热器优化

  回复:106户型客卫马桶侧面为散热器,为避免肢体碰撞,已更改卫生间散热器选型;

8

  (7)纱窗优化

  回复:所有户型隐形纱窗已安装到位

9

  (8)卫生间暖气片出墙管优化

  回复:所有户型卫生间暖气片出墙管口已设置装饰扣盖

10

  (9)坐便器安装不规范

  回复:所有户型坐便器安装已进行整改方正

11

  (10)阳台朝天缝明露问题

  回复:通过海棠角填补勾缝剂方式已对窗台处明露朝天缝进行整改。

12

  (11)窗台不平整

  回复:窗台不平整、内坡度现场已返工,整改后满足规范要求。

13

  (12)地漏及台盆背板的优化

  回复:地漏四周已进行找坡处理;添加台盆柜下方背板。

14

  (13)窗台人造石底口封堵

  回复:窗台人造石底口已进行封堵处理;

15

  (14)墙体、木作尺寸复验

  回复:墙体不方正,已逐户进行检查,发现问题进行整改,大区施工确保施工质量;针对推拉门、铝镁合金门、橱柜、五金件、外窗质量问题,已逐项进行检查整改,确保材料及安装质量;

16

  4.所有管线应按实际安装到位。应确保图纸、标牌、软装配饰、部品展示等与最终交付产品保持一致。

  回复:燃气管线、下水管线、热水器排气管已做加固处理并安装到位,通过仔细核查确保图纸标牌、部品家具等与最终交付产品保持一致。

17

18

  5.应进一步优化装配式部品选型及工艺做法

  回复:干式工法墙面,取消了局部采用双面胶带的做法,采用工厂预制,现场干法施工、快速安装的瓷砖墙面做法。

19

  6. 补充同层排水专项方案。

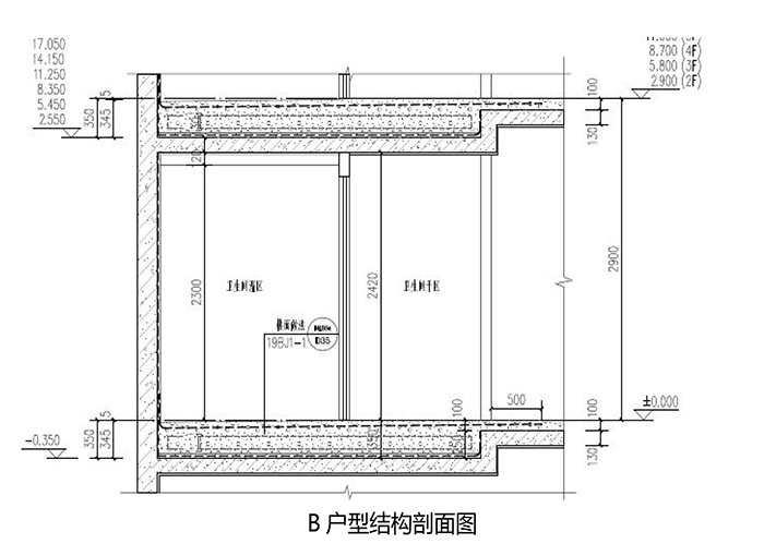
  回复:(1)卫生间同层排水专项整体解决方案。

20

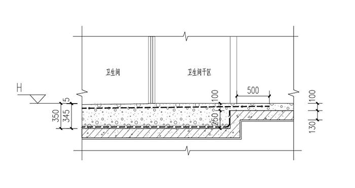
  (2)节点做法:卫生间降板的底板做聚氨酯(单组分)防水涂料,卫生间回填后地面和墙面做第二遍防水,采用1.5厚聚合物水泥基防水涂料,卫生间洗脸盆部位防水沿长度方向龙头两侧各外延600mm,门洞外延伸500。

21

001

  (3)B户型给排水管线排布

002

23

  (4)为保证地漏不返味,所有地漏在降板区内采用带水封地漏,水封深度满足50mm的规范要求,其他户型卫生间排水系统见下图:

24

25

  7.其他意见和建议详见《专家评审意见表》。

  回复:其他意见已修改(详见附件)。

  附件:北京市保障性住房全装修设计方案审查专家评审意见表.docx

【大 小】 打印】 【关闭