捷克论坛-捷克论坛官方最新直通站

门头沟区龙泉镇门头沟新城05街区 MC00-0005-6002、6003、6010、6011、6007、6008、6012地块R2二类居住用地、S4社会停车场用地、A33基础教育用地项目共有产权住房全装修设计方案专家评审意见回复

捷克论坛-捷克论坛官方最新直通站

我在听,请说话(10s)
抱歉,没听清,请再说一遍吧
智能问答
您所在位置:主页  > 住房保障 > 项目建设 > 设计方案公示

门头沟区龙泉镇门头沟新城05街区 MC00-0005-6002、6003、6010、6011、6007、6008、6012地块R2二类居住用地、S4社会停车场用地、A33基础教育用地项目共有产权住房全装修设计方案专家评审意见回复

信息来源:市住房和城乡建设委发布时间:2022年05月12日

    2022年1月25日,捷克论坛 会同市规划自然资源委组织召开了“门头沟区龙泉镇门头沟新城05街区MC00-0005-6002、6003、6010、6011、6007、6008、6012地块R2二类居住用地、S4社会停车场用地、A33基础教育用地”项目共有产权住房全装修设计方案专家评审会,专家组及相关部门实地查看了A2、B1户型两套装修样板间,听取了建设单位北京京能京西房地产开发有限公司的汇报,并就有关问题进行了质询。经讨论形成如下评审意见:

1.原则通过全装修试错样板间评审。

2.完善设备和部品配置,补充安装太阳能辅热设备。

回复:热水供应问题优化为取消燃气热水器辅热,太阳能系统采用集中集热,分户储热的系统形势;室内设置储热罐,自带电加热装置作为辅热热源。与本项目施工图审查单位建研航规北工(北京)工程咨询有限公司沟通,太阳能热水系统采用集中集热,分户辅热且辅热方式采用电辅热,满足规范要求。

基于以上要求和结论,本项目热水采用太阳能热水系统采用集中集热,分户辅热且辅热方式采用电辅热的方式。

现场照片

现场照片

3.优化收口工艺做法,保证整体交付品质。

回复:针对天花石膏造型线调整为成品石膏线、瓷砖阳角处提前加工瓷砖边导为阳角45°角,现场对拼方式,保证交付品质。

修改后天花石膏造型线

修改后瓷砖阳角处

4.其他意见和建议详见《专家评审意见表》。

回复:我方会对附件审查意见进行优化设计,落实到位,详见附件回复内容。

附件

北京市保障性住房全装修设计方案审查

专家评审意见表

2022年1月25日

项目名称

门头沟区龙泉镇门头沟新城05街区MC00-0005-6002、6003、6010、6011、6007、6008、6012地块R2二类居住用地、S4社会停车场用地、A33基础教育用地项目

建设单位

北京京能京西房地产开发有限公司

设计单位

北京维拓时代建筑设计股份有限公司

保障性住房审查意见

一、专家意见一

整体样板间设计合理。

(一)燃气热水器位置明确安装交付。

回复:已明确本项目热水采用太阳能热水系统采用集中集热,分户辅热且辅热方式采用电辅热的方式。

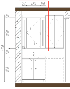
(二)镜柜凹在储物柜里侧,建议优化一下镜柜门开启尺寸,方便平时开启使用。

回复:镜柜在现有造型的基础上将柜门可开启扇尺寸减小,完善了镜柜门开启使用的问题。

A2户型修改

A2户型修改

A2户型修改(现场照片)

A2户型修改(现场照片)

B1户型修改

B1户型修改

B1户型修改

B1户型修改

(三)玄关柜顶部收口、客厅顶部装饰线角工艺建议优化,保证大区实施质量。

回复:玄关柜顶部收口及客厅顶部天花装饰线工艺将优化为同样板间尺寸规格一致的成品石膏线,保证大区的规格统一及质量保证。

整改后玄关柜收口

整改后天花装饰线

(四)A2户型厨房门可以优化为平开门。

回复:优化为平开门,向外开,不影响厨房内部使用,且能保证将来使用的持久性。

修改

修改

修改

修改

二、专家意见二

(一)设计复核部品安装位置和功能尺寸,如厨房设备、橱柜安装的高度,淋浴花洒的安装位置是否合理。

回复:经与厂家深化图纸及现场核实,橱柜设备及安装的高度满足常规使用的合理尺寸(地柜高度800mm,吊柜与地柜中间空挡操作区700mm);淋浴区的花洒位置目前为现有方案中较为合理的位置,包围感及面宽尺度是现有平面最优的选择,且配有浴帘杆的交付,业主使用浴帘可将整个浴区围合,使用均合理。

橱柜尺寸

现场复核尺寸

现场复核尺寸

A2户型卫生间平面布局

A2户型卫生间现场照片

B1户型卫生间平面布局

B1户型卫生间现场照片

(二)建议窗内框是否选用白色,地砖是否选用亚光。

回复:经对此前其他同类项目的参观与学习,窗内框颜色为深色的较多,统一内外框颜色也是设计的初衷,购买此类型项目的销售人群年轻人居多,市场的接受度也比较高;另外地砖的选用亮光及现有的暖色也是结合整体温馨、现代、明亮的设计思路,同时也便于将来业主的日常卫生保洁,耐脏且易清洗。所以综上所述,考虑将继续沿用现有样板间窗内框颜色及地砖效果,最为最终的交付效果。

(三)优化收口工艺做法,保证整体交付与样板间的一致性。

回复:已优化收口做法,保证交付时的品质及一致性。

三、专家意见三

(一)起居室散热器被窗帘遮挡,建议结合功能与美观综合确定散热器的位置。

回复:为实现客厅功能布局美观合理、家具摆放最大化利用的目标,且经过设计单位暖通专业复核,不影响采暖效率,客厅暖气位置如图所示。

A2户型平面布局

A2户型现场照片

B1户型平面布局

B1户型现场照片

    (二)个别插座被橱柜遮挡,不便使用。

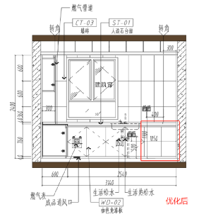
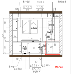
回复:此问题插座原来是给燃气热水器预留,现由于太阳能热水器增加电辅热,将取消燃气热水器的设置,所以此插座将被删减,此问题得以解决。

修改

修改

(三)A2橱柜部门柜门与冰箱有冲突,建议优化。

回复:冰箱与橱柜门冲突的户型为B1户型,现将优化厨房柜门的设计,将贴近冰箱处的厨柜门做固定扇处理,但是内部的储物空间将与临近的柜内联通,保证内部的储物空间得到保留,同时也解各种尺寸冰箱摆放后的开门储物难的问题。

修改

修改

修改前橱柜门打不开

修改后使用空间不变

(四)建议增加镜柜背板。

回复:已经在样板间现场增加镜柜背板。

修改无背板

修改增加镜柜背板

(五)应补充太阳能燃气辅热设备。

回复:本项目热水采用太阳能热水系统采用集中集热,分户辅热且辅热方式采用电辅热的方式。

(六)非交付产品应全部明确标出。

  回复:样板间考虑实际展示过程中空间需要制暖制冷,因此配备空调设备,增加了壁挂机,现场走管条件受限,管道需要上反,实际交付时无此上返管线。已按照要求将非交付标准部品进行标注提示。

修改前照片

补充非交付标准的说明

(七)入户门门槛高度不应高于35mm。

回复:按35mm的要求调整入户门槛高度。

修改门槛高度大于35mm

修改门槛高度为35mm

【大 小】 打印】 【关闭