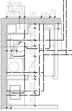
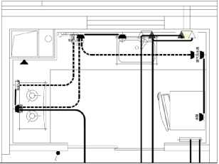
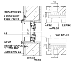
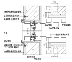
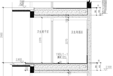
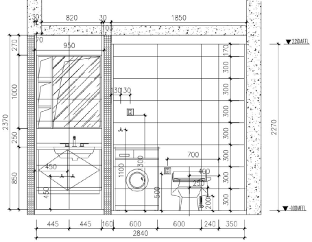
(三)电梯厅标准层的墙面和顶棚直接交接,不满足工法和外观要求,而且施工速度慢难度大。建议增加天花线脚来遮挡。公共走廊的灰色墙面建议调整。 回复:本项目电梯厅墙砖采用600×600mm瓷砖,竖向用砖4块半左右,顶上半砖现场裁切。施工时先进行墙面贴砖的施工,根据现场情况进行裁砖,尽量减少施工误差,控制在2mm左右。墙砖施工完成后再进行顶面的施工。顶面做找平时可以弥补墙砖的误差,可以达到顶部阴角的美观要求。 | | 公共区域现场照片 | 公共区域顶面找平现场照片 | | | 公共走廊效果图:墙面灰色 | 公共走廊效果图:墙面调整为白色 | (四)厨房墙面应预留预埋适当的承重点位并与结构连接牢靠安全;窗帘盒的轨道(或者罗马杆)的支撑点位要与结构连接牢靠安全。 回复:现厨房烟机、吊柜、燃气热水器等设备吊挂处均已增加加固板加固,考虑日后使用中增加厨具、支架等设备,在相应位置增设加固板预留条件,饰面相应位置贴加固区域标识。施工时做专项检查,确保窗帘盒轨道(或者罗马杆)的支撑点与结构连接牢靠安全。 (五)“每单元4户”的单元,B和B反户型的次卧室外窗及与相邻户型的阳台窗和空调机位板安装窗之间存在视觉干扰,空调机位板距离近存在防盗弱点,建议修改优化。 回复:相邻户型为A户型,A户型南侧的空调室外机检修窗采用磨砂玻璃处理。室外空调机机位采用封闭顶面,防止人员进出的措施。 (六)小区住宅外立面的色彩和材质,要在尊重地区上位规划和导则的基础上,努力与相邻现状住宅的色彩和材质保持协调。 回复:本小区邻近为紫贵御园小区,该小区立面裙房部分为暖灰色石材,建筑主体为暖黄色涂料。本小区建筑外立面色彩采用暖白色和暖灰色,达到与周边小区协调的目的,形成区域色彩协调。并且为了保证效果,在外立面涂料大面积施工前,做暖灰色、暖棕色、暖白色、暖黄色上墙样板,经设计单位及相关政府部门确认后进行实施。  | 外立面效果图 | 二、专家意见二 (一)合理性 1.厨房推拉门宽度。 回复:厨房推拉门洞口宽度1.5米,满足规范要求。  |  | C户型推拉门照片 | C户型推拉门照片 | 2.厨房燃气管经过的柜门设置排风百叶。 回复:样板间增加排风百叶。  |  | B户型调整前照片 | B户型调整后照片 | C户型橱柜优化后,水池下方柜体与右侧柜体联通,因此只在右侧柜体上加了排风百叶。  |  | C户型调整前照片 | C户型调整后照片 | 3.阳台是否需要安装隔断。 回复:不安装隔断使客厅空间更加明亮、整洁。 (二)模数:厨房墙、顶、地尽可能对缝处理。 回复:因地砖(600×600mm)为留缝(2mm)铺贴,墙板(600mm宽)为密拼(墙缝不明显),两者安装后尺寸不一致,且墙板和地砖铺贴起铺点原则不同,地砖从门口位置向内铺贴,墙板从门窗洞口向两侧排布,在安装橱柜和放上冰箱后,两缝是否对齐并不明显。现样板间已考虑此问题,进行了部分对缝处理。大面积实施前会考虑此问题尽可能实现对缝。  |  | C户型厨房实景照片 | B户型厨房实景照片 | (三)规范性:现场没软装样板间的家具示意应补充完善、统一。 回复:样板间增加标识  |  | 整改前 | 整改后:补充床头柜 |  |  | 整改前 | 整改后:补充床头柜 |  |  | 整改前 | 整改后:补充茶几等 | (四)工艺:多个细部要精细到位,现场某些小的节点存在明显问题。 回复:本项目施工过程中进一步加强质量控制,预防质量通病。样板间不完善的部位已整改,包括台下盆底,洗脸柜体收口,洗脸柜台面、挡水板,窗台收口处等,并更换挡水板重新打胶。 (五)优化 1.建筑梁与卫生间降板等形成的实际的梁争取更加美观。 回复:卫生间结构降板图纸已修改,样板间已按照修改后图纸进行调整。  |  | 整改前 | 整改后:调整梁高,使梁下皮同高 |  | | B户型整改前 | B户型整改后 | | | C户型整改前 | C户型整改后 | 2.卧室里的梁(C户型)对家具有影响,也应提前做好现场引导说明的培训工作。 回复:已对销售人员进行培训,并在家具标识上增加文字说明,限制柜体高度。 3.一般来说电箱不设置在卧室里,提前与审图单位沟通。 回复:已与审图单位沟通,弱电箱位置满足设计规范要求。  | 弱电箱位于卧室门后 | 三、专家意见三 全装修样板间(B、C户型)意见如下 1.厨房装配式墙面阴、阳角收边,窗套、窗台收边,吊顶收边,建议优化调整,并应考虑日后使用中增加悬挂柜体、支架等预埋固定条件的要求。 回复:(1)装配式墙板阴角增加阴角铝型材收口,并补充阴阳角、窗套、吊顶收边等节点;(详见附图) | | 阴阳角收口示意图 | 铝扣板吊顶收边示意图 | | | 整体窗套安装示意图 | | 调整后照片 (墙面阴阳角、加固板安装后照片) |  |  |  | 调整前:墙面未加加固板 | 调整前:墙面未加阴角条 | 调整前:窗套侧边无堵头 | | | | 调整后:墙面增设加固板 | 调整后:墙面增设阴角条 | 调整后:窗套侧边增设专用堵头 | | | | | (2)考虑日后使用中增加厨具、支架等设备,在相应位置增设加固板预留条件,并在饰面相应位置贴加固区域标识。 (二)厨房窗套、窗台采用单层钢板体系,建议优化调整,确保使用功能和整体观感效果及施工质量。 回复:优化窗套、窗套板做法,窗套内增加基层板,侧边加专用堵头封堵,具体如下: | | 窗套安装示意图 |  |  | 调整前:窗套侧未封堵 | 调整后:窗套侧采用专用堵封堵 | (三)厨房推拉门开启不灵活,易变形;橱柜柜体靠冰箱处门扇开启问题,建议优化调整。 回复:门厂家对厨房门挂架进行调平衡处理,现在已开启灵活;橱柜柜体靠冰箱处门扇调整为不可开启,水盆柜与该柜体内部联通。  |  | C户型调整前照片 | C户型调整后照片 | (四)卫生间干区两侧墙体局部瓷砖饰面,地漏四周无找坡易造成排水不畅,门框套做法易受潮变形等问题,建议调整。 回复:(1)局部瓷砖是从整体协调性和美观性考虑,原因见下图: (2)地漏问题样板间及施工图已调整;门框套做法问题增加过门石宽度,门套落在过门石上,避免浸泡,同时湿区面的门及门套增加防潮涂层; (五)卫生间同层排水设计做法不详,建议补充相关专业和装修整体设计方案。 回复:已补充卫生间同层排水专项整体解决方案。 (六)窗帘盒设计节点不正确,易存在质量通病;设计图纸与样板间存在不一致问题。 回复:修改窗帘盒节点,做L型轻钢龙骨结构连接。设计图纸与样板间不一致的问题,是样板间窗帘盒节点图纸设计有错误。实际样板间是按照常规做法,即调整后的节点图纸施工的,因此只修改了图纸。 (七)外窗窗纱设计开启不便,建议优化调整,并应满足安全要求。 回复:现外窗窗纱设计,为上提式开启。在安装空调或清洗窗纱时可以把窗纱及边框一起上提后卸下,满足使用及安全要求。详见照片。  |  | 开启前照片 | 开启后照片 | (八)加强全装修质量控制,预防质量通病,以及细部收口处理(台下盆底的四周打胶,橱柜台面、挡水板,洗脸柜体台面、挡水板等收口收边处理;厨房设备管线布置等)。 回复:本项目施工过程中进一步加强质量控制,预防质量通病。样板间不完善的部位已整改,包括台下盆底,洗脸柜体收口,洗脸柜台面、挡水板,窗台收口处等,并更换挡水板重新打胶。还更换了燃气软管,优化了燃气立管穿橱柜处理方式。 |